Toggle navigation
Accueil
Contact
Vous vendez / louez
Estimation
Favoris

< Retour à la page précédente
Partager sur :
Imprimer
Maison de 80 m² - Terrain de 483 m²
Gap - Saint Jean (05000)
310 000 €uros*
|
Ref: 623 13
Previous
Next
Demande d'informations
Bonjour, Je souhaite avoir des informations complémentaires sur le bien de l'annonce 623 13 situé à Gap (au prix de 310 000 €uros* ). En vous remerciant par avance,
Envoyer
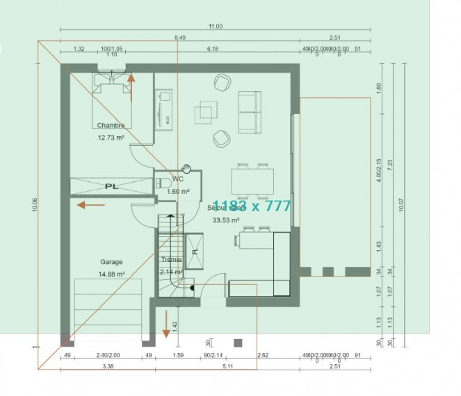
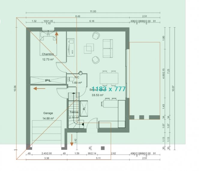
Nombre de pièces 4
Surface environ 80 m²
Terrain environ 483 m²
Bienvenue dans votre futur chez vous ! Explorez votre projet de construction parfait, alliant une maison accueillante et un jardin paisible, idéalement situé dans un quartier prisé de Gap sud proche des commerces et arret de bus.
Pour ce modèle vous aurez un garage avec porte sectionnelle motorisée, une chambre au rez-de-chaussée, WC, une pièce de vie ouverte sur le jardin et à l'étage deux chambres, salle d'eau avec toilettes.
Vous pourrez choisir vos options parmi une multitude de finitions et prestations à la carte. N�hésitez pas à nous contacter pour vous accompagner dans votre projet.
Cette maison est conforme à la Réglementation Environnementale 2020.
Le prix est hors peinture, hors cuisine et aménagements extérieurs.
[ infos loi ALUR ]
Nombre de lots dans la copropriété: 21
Montant des charges: 0 EUR/an
Procédure en cours: Non
* Honoraires à la charge du vendeur
Diagnostics de performance energétique
Les informations sur les risques auxquels ce bien est exposé sont disponibles sur le site Géorisques
https://www.georisques.gouv.fr
.